4 Sugarbird

Chapmans Bay Estate, Noordhoek

About 4 Sugarbird

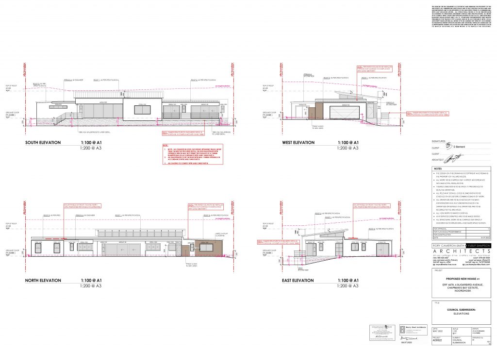
4 Sugarbird is a single story home, consisting of 3 Bedrooms en-suite, a large dual occupancy work from home study and a large open plan living area opening out onto the covered patio and entertainment area.

There is an external service WC and a double lock up garage. View consist of both Noordhoek Beach and uninterrupted views of the Silvermine Nature reserve.

ERF Area
Under Roof (Internal Only)
Covered Patio

703sqm
290sqm
38sqm

ERF Area
Under Roof (Internal Only)
Covered Patio

703sqm
290sqm
38sqm

Bedrooms
Guest WC
Scullery
Study
Built-in Braai
Service WC
Lock-up Garages

3 En-suite
1
Yes
Yes
Yes
1
2

Bedrooms
Guest WC
Scullery
Study
Built-in Braai
Service WC
Lock-up Garages

3 En-suite
1
Yes
Yes
Yes
1
2